Барнаул,
Георгия Исакова, 116Б
Фильтры

Описание

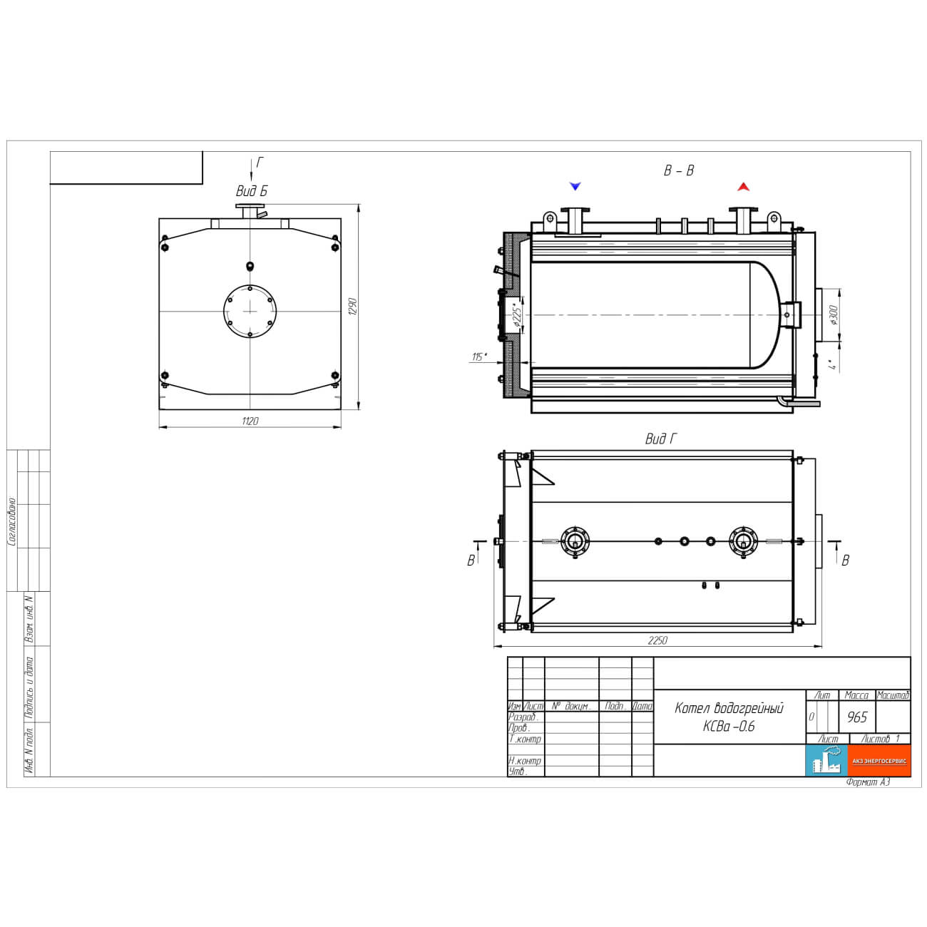
Котлы серии КСВа — стальные жаротрубные двухходовые (по дымовым газам) котлы горизонтальной компоновки, разработанные для ООО «АКЗ Энергосервис». Отличительная особенность — циркуляция теплоносителя вокруг дымогарных труб, а внутри них — движение дымовых газов.

Котлы работают с принудительной циркуляцией теплоносителя, под наддувом в топке, с реверсивной топкой — газы разворачиваются в цилиндрической топочной камере. Подходят для работы как на жидком топливе (мазут, дизель, нефть), так и на газообразном.

Конструкция включает:

  • корпус с теплоизоляцией и декоративным кожухом;
  • переднюю дверку (одно- или двухстворчатую) с креплением длиннопламенной горелки;
  • конвективный газоход из дымогарных труб, вваренных в трубные доски;
  • спиралеобразные турбулизаторы внутри труб для усиления теплообмена;
  • люк для прочистки труб и осмотровые лючки;
  • патрубки для подвода/отвода теплоносителя, предохранительных клапанов, дренажа;
  • фланец для отвода дымовых газов и взрывной клапан.

Серия КСВа — надёжное решение для промышленных систем теплоснабжения с высокими требованиями к эффективности и долговечности.

Характеристики

Длина
2250
Ширина
1120
Высота
1290
Номинальная мощность
600 кВТ, 517,2 Мкал/ч
КПД при 100% нагрузке %
92,26
Расчетная отапливаемая площадь (расчетная высота потолков 3м) м2
6000
Мощность топки
650,3 кВТ, 560,6 Мкал/ч
Расход газа м3/ч
71,11
Расход дизельного топлива кг/ч
52,78
Расход мазута кг/ч
52,21
Расход дымовых газов при 100% нагрузке м3/ч
1059,56
Температура уходящих газов (для газа) оС
185
Температура уходящих газов (для диз. топлива) оС
188
Температура уходящих газов (для мазута) оС
187
Аэродинамическое сопротивление котла Па
640
Рабочее давление МПа (кгс/см2)
0,6
Температурный график котла оС
55-110
Расход воды через котел м3/ч
11,4
Гидравлическое сопротивление котла кПа
2,7
Водяной объем котла м3
0,645
Масса блока котла кг
965
Диам. присоединения горелки мм
225
Диам. выходного газохода мм
300
Рекомендуемые типы горелок F.B.R. (Италия)
Газ GAS P70/2 TL, ДТ FGP 70/2 TL, Мазут FNDP 70/2 TL, Комб. K 5/2 TL
Гарантийный срок эксплуатации мес.
12

Доставка

Доставка нашей продукции осуществляется во все города России:

  • Москва
  • Санкт-Петербург
  • Новосибирск
  • Екатеринбург
  • Нижний Новгород
  • Казань
  • Самара
  • Челябинск
  • Омск
  • Ростов-на-Дону
  • Уфа
  • Красноярск
  • Пермь
  • Волгоград
  • Воронеж
  • Саратов
  • Краснодар
  • Тольятти
  • Тюмень
  • Ижевск
  • Барнаул
  • Ульяновск
  • Иркутск
  • Владивосток
  • Ярославль
  • Хабаровск
  • Оренбург
  • Томск
  • Новокузнецк
  • Кемерово
  • Астрахань
  • Рязань
  • Набережные Челны
  • Пенза
  • Липецк
  • Тула
  • Киров
  • Чебоксары
  • Курск
  • Улан-Удэ
  • Ставрополь
  • Магнитогорск
  • Тверь
  • Иваново
  • Брянск
  • Сочи
  • Сургут