Барнаул,
Георгия Исакова, 116Б
Фильтры

Описание

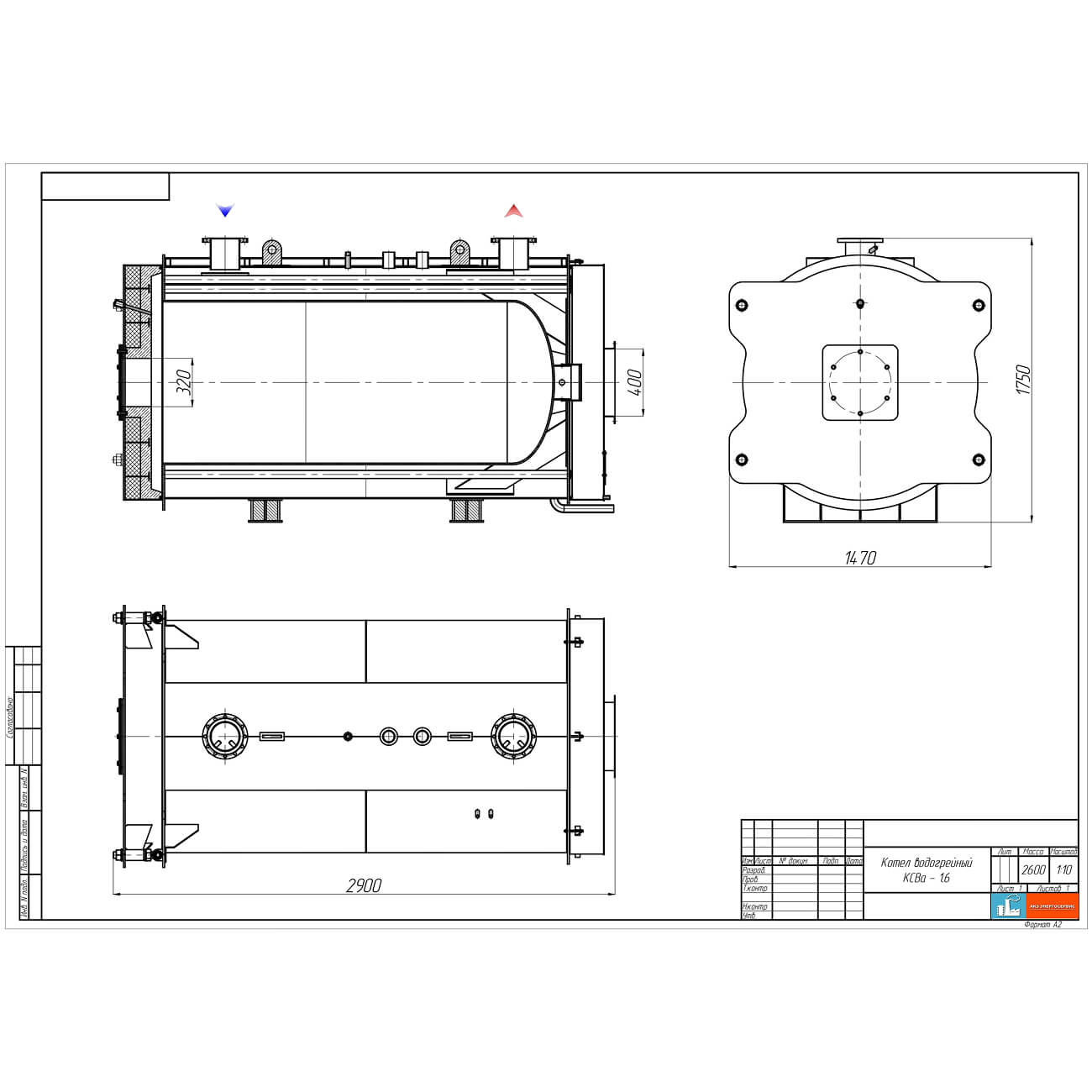
Котлы серии КСВа — стальные жаротрубные двухходовые (по дымовым газам) котлы горизонтальной компоновки, разработанные для ООО «АКЗ Энергосервис». Отличительная особенность — циркуляция теплоносителя вокруг дымогарных труб, а внутри них — движение дымовых газов.

Котлы работают с принудительной циркуляцией теплоносителя, под наддувом в топке, с реверсивной топкой — газы разворачиваются в цилиндрической топочной камере. Подходят для работы как на жидком топливе (мазут, дизель, нефть), так и на газообразном.

Конструкция включает:

  • корпус с теплоизоляцией и декоративным кожухом;
  • переднюю дверку (одно- или двухстворчатую) с креплением длиннопламенной горелки;
  • конвективный газоход из дымогарных труб, вваренных в трубные доски;
  • спиралеобразные турбулизаторы внутри труб для усиления теплообмена;
  • люк для прочистки труб и осмотровые лючки;
  • патрубки для подвода/отвода теплоносителя, предохранительных клапанов, дренажа;
  • фланец для отвода дымовых газов и взрывной клапан.

Серия КСВа — надёжное решение для промышленных систем теплоснабжения с высокими требованиями к эффективности и долговечности.

Характеристики

Длина
2900
Ширина
1470
Высота
1750
Номинальная мощность
1600 кВТ, 1379,3 Мкал/ч
КПД при 100% нагрузке %
92,33
Расчетная отапливаемая площадь (расчетная высота потолков 3м) м2
16000
Мощность топки
1732,9 кВТ, 1493,9 Мкал/ч
Расход газа м3/ч
183,39
Расход дизельного топлива кг/ч
136,11
Расход мазута кг/ч
134,63
Расход дымовых газов при 100% нагрузке м3/ч
2732,46
Температура уходящих газов (для газа) оС
183
Температура уходящих газов (для диз. топлива) оС
186
Температура уходящих газов (для мазута) оС
186
Аэродинамическое сопротивление котла Па
650
Рабочее давление МПа (кгс/см2)
0,6
Температурный график котла оС
55-110
Расход воды через котел м3/ч
30,5
Гидравлическое сопротивление котла кПа
3,2
Водяной объем котла м3
1,50
Масса блока котла кг
2600
Диам. присоединения горелки мм
320
Диам. выходного газохода мм
400
Рекомендуемые типы горелок F.B.R. (Италия)
Газ GAS P190/2 TL, ДТ FGP 190 TL, Мазут FNDP 190/2 TL, Комб. K 190 TL
Гарантийный срок эксплуатации мес.
12

Доставка

Доставка нашей продукции осуществляется во все города России:

  • Москва
  • Санкт-Петербург
  • Новосибирск
  • Екатеринбург
  • Нижний Новгород
  • Казань
  • Самара
  • Челябинск
  • Омск
  • Ростов-на-Дону
  • Уфа
  • Красноярск
  • Пермь
  • Волгоград
  • Воронеж
  • Саратов
  • Краснодар
  • Тольятти
  • Тюмень
  • Ижевск
  • Барнаул
  • Ульяновск
  • Иркутск
  • Владивосток
  • Ярославль
  • Хабаровск
  • Оренбург
  • Томск
  • Новокузнецк
  • Кемерово
  • Астрахань
  • Рязань
  • Набережные Челны
  • Пенза
  • Липецк
  • Тула
  • Киров
  • Чебоксары
  • Курск
  • Улан-Удэ
  • Ставрополь
  • Магнитогорск
  • Тверь
  • Иваново
  • Брянск
  • Сочи
  • Сургут
На сайте используются файлы cookie и Яндекс Метрика. Нажимая кнопку «Принять» или продолжая просмотр сайта, вы даете согласие на обработку персональных данных в соответствии с политикой конфиденциальности и принимаете условия пользовательского соглашения.
Принять