Барнаул,
Георгия Исакова, 116Б
Фильтры

Описание

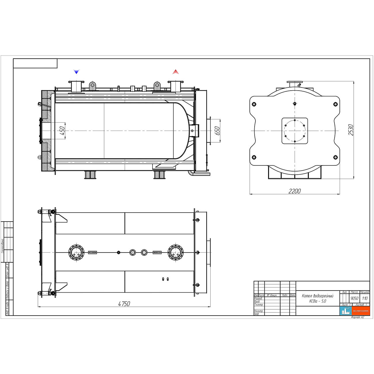
Котлы серии КСВа — стальные жаротрубные двухходовые (по дымовым газам) котлы горизонтальной компоновки, разработанные для ООО «АКЗ Энергосервис». Отличительная особенность — циркуляция теплоносителя вокруг дымогарных труб, а внутри них — движение дымовых газов.

Котлы работают с принудительной циркуляцией теплоносителя, под наддувом в топке, с реверсивной топкой — газы разворачиваются в цилиндрической топочной камере. Подходят для работы как на жидком топливе (мазут, дизель, нефть), так и на газообразном.

Конструкция включает:

  • корпус с теплоизоляцией и декоративным кожухом;
  • переднюю дверку (одно- или двухстворчатую) с креплением длиннопламенной горелки;
  • конвективный газоход из дымогарных труб, вваренных в трубные доски;
  • спиралеобразные турбулизаторы внутри труб для усиления теплообмена;
  • люк для прочистки труб и осмотровые лючки;
  • патрубки для подвода/отвода теплоносителя, предохранительных клапанов, дренажа;
  • фланец для отвода дымовых газов и взрывной клапан.

Серия КСВа — надёжное решение для промышленных систем теплоснабжения с высокими требованиями к эффективности и долговечности.

Характеристики

Длина
4750
Ширина
2200
Высота
2530
Номинальная мощность
5000 кВТ, 4310,3 Мкал/ч
КПД при 100% нагрузке %
92,56
Расчетная отапливаемая площадь (расчетная высота потолков 3м) м2
50000
Мощность топки
5401,9 кВТ, 4656,8 Мкал/ч
Расход газа м3/ч
571,64
Расход дизельного топлива кг/ч
424,27
Расход мазута кг/ч
419,67
Расход дымовых газов при 100% нагрузке м3/ч
8517,44
Температура уходящих газов (для газа) оС
178
Температура уходящих газов (для диз. топлива) оС
181
Температура уходящих газов (для мазута) оС
180
Аэродинамическое сопротивление котла Па
1000
Рабочее давление МПа (кгс/см2)
0,6
Температурный график котла оС
55-110
Расход воды через котел м3/ч
95,4
Гидравлическое сопротивление котла кПа
5,8
Водяной объем котла м3
6,20
Масса блока котла кг
9050
Диам. присоединения горелки мм
450
Диам. выходного газохода мм
650
Рекомендуемые типы горелок F.B.R. (Италия)
Газ GAS P550/M, ДТ FGP 550/M TL, Мазут FNDP 550/M TL, Комб. K 550/M TL
Гарантийный срок эксплуатации мес.
12

Доставка

Доставка нашей продукции осуществляется во все города России:

  • Москва
  • Санкт-Петербург
  • Новосибирск
  • Екатеринбург
  • Нижний Новгород
  • Казань
  • Самара
  • Челябинск
  • Омск
  • Ростов-на-Дону
  • Уфа
  • Красноярск
  • Пермь
  • Волгоград
  • Воронеж
  • Саратов
  • Краснодар
  • Тольятти
  • Тюмень
  • Ижевск
  • Барнаул
  • Ульяновск
  • Иркутск
  • Владивосток
  • Ярославль
  • Хабаровск
  • Оренбург
  • Томск
  • Новокузнецк
  • Кемерово
  • Астрахань
  • Рязань
  • Набережные Челны
  • Пенза
  • Липецк
  • Тула
  • Киров
  • Чебоксары
  • Курск
  • Улан-Удэ
  • Ставрополь
  • Магнитогорск
  • Тверь
  • Иваново
  • Брянск
  • Сочи
  • Сургут
На сайте используются файлы cookie и Яндекс Метрика. Нажимая кнопку «Принять» или продолжая просмотр сайта, вы даете согласие на обработку персональных данных в соответствии с политикой конфиденциальности и принимаете условия пользовательского соглашения.
Принять