Барнаул,
Георгия Исакова, 116Б
Фильтры

Описание

Назначение: котел КВБм-2,5 Мвт (КВБм-2,15 Гкал) служит для отопления и горячего водоснабжения жилых, административных, производственных объектов. Для нужд сельскохозяйственных, животноводческих, предприятий горной промышленности и т.д. Котлы серии без накипные служат в котельных, не оборудованных приборами химводоподготовки.

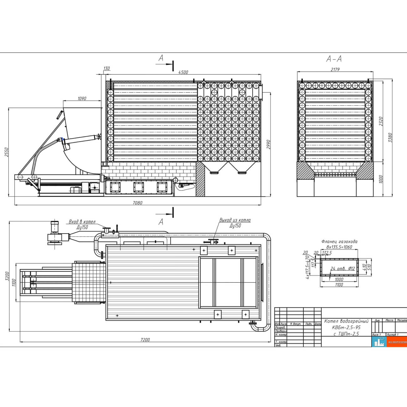
Описание: Котел КВБм-2,5 работает с принудительной циркуляцией воды при рабочем давлении 0,6 МПа (6,0 кгс/см2) и с уравновешенной тягой, которую обеспечивают вентилятор и дымосос.

Котел КВБм-2,5 имеет горизонтальную компоновку. Топочная камера экранирована газоплотными панелями, выполненными из труб Ø159×4,5. Конвективные поверхности нагрева располагаются вертикальных газоходах. Конвективные пакеты так же выполняются из труб Ø159×4,5.

Для визуального осмотра и механической очистки конвективных газоходов на котле предусмотрены прочистные люки. По желанию заказчика котлы могут устанавливаться на раму либо кирпичный фундамент, компоноваться колосниками, топкой ТФГ(ОУР) или механической топкой.

Котлы имеют оптимальные для процесса горения размеры сечения и объема топочной камеры. Скорости дымовых газов 8-10 м/с для увеличения эффективности теплообменных процессов и уменьшения металлоемкости котлов, в следствии чего уменьшаются габаритные размеры и стоимость котлов.

Все нагревательные трубы в котле последовательно соединены тангенциальными патрубками, при помощи которых в трубах организованно вихревое движение воды, увеличиваются пристенные скорости, исключается закипание воды и отложение накипи на внутренних поверхностях труб.

Применение трубы Ø159×4,5 позволяет использовать в качестве теплоносителя водопроводную воду, что уменьшает затраты на химическую подготовку воды.

Активный объем топки ограничен фронтовым, боковыми, потолочным экранами и первым конвективным пакетом, выполненными из труб 159×4,5, сталь 20, с шагом 190 мм. Все экраны газоплотные (с варкой полосы 4×40).

Конвективные поверхности нагрева котла расположены в четырех вертикальных газоходах. Два газохода — опускных, два — подъемных.

Дымовые газы покидают котел через выходной газоход, расположенный в задней части котла.

Для осмотра и очистки конвективных поверхностей нагрева на котле предусмотрена съемная панель, расположенная на крыше котла и имеющая отверстия для продувки сжатым воздухом.

Монтаж котла: монтаж котла КВБм-2,5 производится на объект заказчика в течение 2 дней, при наличии оборудования на складе.

Преимущество котлов КВБм-2,5:

  • простота в обслуживании;
  • неприхотливость;
  • ремонтопригодность;
  • экономичность; 
  • не требует специальной водоподготовки; 
  • долговечность.

Гарантия: гарантия на оборудование 24 месяца.

Характеристики

Длина
4500
Ширина
4500
Высота
2320
Номинальная теплопроизводительность, МВт (Гкал/ч)
2.5 (2.16)
Отапливаемый объем помещения, м³
75000
Расчетный вид топлива
Уголь
Теплота сгорания расчетного топлива, МДж/кг (ккал/кг)
23,57 (5630)
Расчетный расход топлива, кг/ч
498
Коэффициент полезного действия, %, не менее
78
Рабочее давление воды, МПа (кгс/см2)
0,6 (6,0)
Расчетное давление воды, МПа (кгс/см2)
0,6 (6,0)
Пробное давление воды, МПа (кгс/см2)
0,9 (9,0)
Температура на входе в котле, С
70
Температура воды на выходе из котла, С
95
Гидравлическое сопротивление, МПа (кг/см2), не более
2.0
Расход воды через котел, м3/ч
86.4
Водяной объем котла, м3
4.7
Поверхность нагрева котла, м2
94.1
Объем топочной камеры, м3
6.82
Температура уходящих газов, С, не более
280
Аэродинамическое сопротивление котла, Па, не более
400
Масса котла, кг, не более
5600
Срок службы, лет, не менее
10

Доставка

Доставка нашей продукции осуществляется во все города России:

  • Москва
  • Санкт-Петербург
  • Новосибирск
  • Екатеринбург
  • Нижний Новгород
  • Казань
  • Самара
  • Челябинск
  • Омск
  • Ростов-на-Дону
  • Уфа
  • Красноярск
  • Пермь
  • Волгоград
  • Воронеж
  • Саратов
  • Краснодар
  • Тольятти
  • Тюмень
  • Ижевск
  • Барнаул
  • Ульяновск
  • Иркутск
  • Владивосток
  • Ярославль
  • Хабаровск
  • Оренбург
  • Томск
  • Новокузнецк
  • Кемерово
  • Астрахань
  • Рязань
  • Набережные Челны
  • Пенза
  • Липецк
  • Тула
  • Киров
  • Чебоксары
  • Курск
  • Улан-Удэ
  • Ставрополь
  • Магнитогорск
  • Тверь
  • Иваново
  • Брянск
  • Сочи
  • Сургут
На сайте используются файлы cookie и Яндекс Метрика. Нажимая кнопку «Принять» или продолжая просмотр сайта, вы даете согласие на обработку персональных данных в соответствии с политикой конфиденциальности и принимаете условия пользовательского соглашения.
Принять