Барнаул,
Георгия Исакова, 116Б
Фильтры

Описание

Чертежи котла представлены в двух вариантах на выбор заказчика.

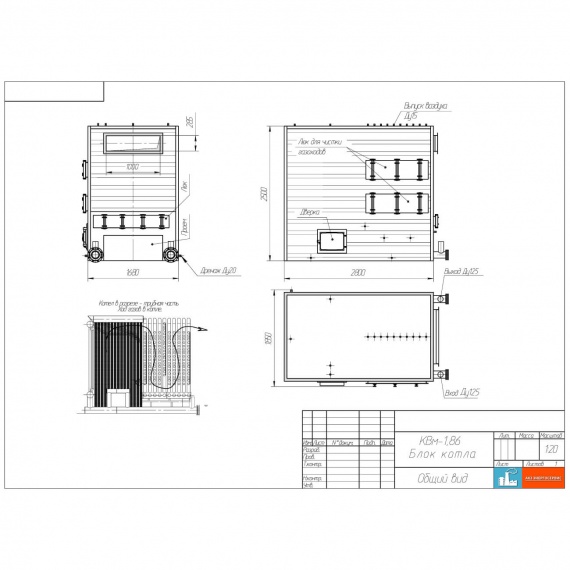
Котел стальной водогрейный КВм-1,86-95 с топкой ТШПм-2,0 предназначен для работы в системах централизованного теплоснабжения и обеспечения ГВС с подогревом воды в котле от 70 градусов по Цельсию до 95. Котел работает с принудительной циркуляцией воды при рабочем давлении 0,6 МПа (6,0 кгс/см2) и с уравновешенной тягой, которую обеспечивают дымосос и вентилятор.

Отапливаемая площадь котлом — 18 600 м2 (при высоте потолка помещения — 3м).

Конструкция котла КВм-1,86-95ШП — трубная система в обшивке и изоляции Топочная часть шатровая состоит из двух боковых экранов, которые соединяются в потолочные. Экран изготавливаются из трубы диаметром 57 мм ст. 3,5 мм. В топочной части котла предусмотрены две дверки для растопки и ревизии горения котлоагрегата. Конвективный блок котла состоит из 13- ти вертикальных пакетов. Для поддержания необходимых скоростей теплоносителя и предотвращения закипания котла, в конвективной части используются трубы диаметром 48*3,5 мм. Для очистки конвективных пакетов на котле предусмотрены люки. Котел комплектуется механической топкой ТШПм-2,0.

Принцип работы водогрейного котла КВм-1,86-95ШП

Котел КВм-1,86-95ШП состоит из двух частей: топочной и конвективной. Образующиеся в топочной камере дымовые газы поднимаются вверх, омывают трубы конвективной поверхности, нагревая циркулирующую в них воду, и выводятся через окно над котлом посредством дымососа в дымовую трубу. Механическая топка ТШПм-2,0 устанавливается под блок котла с фронта. Сбоку топочного блока предусмотрена дверка для обслуживания топки и контроля процесса горения. Топливо в бункер топки ТШПм подает транспортер топливоподачи. Удаление шлака с топки ТШПм происходит за счет движения шурующей планки, которая приводится в движение приводом. Удаление шлака из шлакового канала производится транспортером шлакозолоудаления.

Перед котлом устанавливается вентилятор ВЦ14-46, за котлом — дымосос ДН-8-1500. Регулирование расхода воздуха производится при помощи шиберной заслонки.

Для обеспечения циркуляции воды через котел КВм-1,86-95ШП применяется циркуляционный насос. Давление, создаваемое насосом, контролируется манометром, установленным на напорном трубопроводе насоса. На выходном коллекторе предусмотрена установка двух предохранительных клапанов.

Характеристики

Длина
3460
Ширина
1630
Высота
2000
Номинальная теплопроизводительность, МВт (Гкал/ч)
1.86 (1.6)
Отапливаемый объем помещения, м³
5333
Расчетный вид топлива
Уголь
Теплота сгорания расчетного топлива, МДж/кг (ккал/кг)
23,57 (5630)
Расчетный расход топлива, кг/ч
352
Коэффициент полезного действия, %, не менее
81
Рабочее давление воды, МПа (кгс/см2)
0,6 (6,0)
Расчетное давление воды, МПа (кгс/см2)
0,6 (6,0)
Пробное давление воды, МПа (кгс/см2)
0,9 (9,0)
Температура на входе в котле, С
70
Температура воды на выходе из котла, С
95
Гидравлическое сопротивление, МПа (кг/см2), не более
0,055
Расход воды через котел, м3/ч, не менее
64
Водяной объем котла, м3
1.41
Поверхность нагрева котла, м2
68.6
Объем топочной камеры, м3
5.45
Температура уходящих газов, С, не более
185
Аэродинамическое сопротивление котла, Па, не более
300
Масса котла, кг, не более
4350
Срок службы, лет, не менее
10

Доставка

Доставка нашей продукции осуществляется во все города России:

  • Москва
  • Санкт-Петербург
  • Новосибирск
  • Екатеринбург
  • Нижний Новгород
  • Казань
  • Самара
  • Челябинск
  • Омск
  • Ростов-на-Дону
  • Уфа
  • Красноярск
  • Пермь
  • Волгоград
  • Воронеж
  • Саратов
  • Краснодар
  • Тольятти
  • Тюмень
  • Ижевск
  • Барнаул
  • Ульяновск
  • Иркутск
  • Владивосток
  • Ярославль
  • Хабаровск
  • Оренбург
  • Томск
  • Новокузнецк
  • Кемерово
  • Астрахань
  • Рязань
  • Набережные Челны
  • Пенза
  • Липецк
  • Тула
  • Киров
  • Чебоксары
  • Курск
  • Улан-Удэ
  • Ставрополь
  • Магнитогорск
  • Тверь
  • Иваново
  • Брянск
  • Сочи
  • Сургут